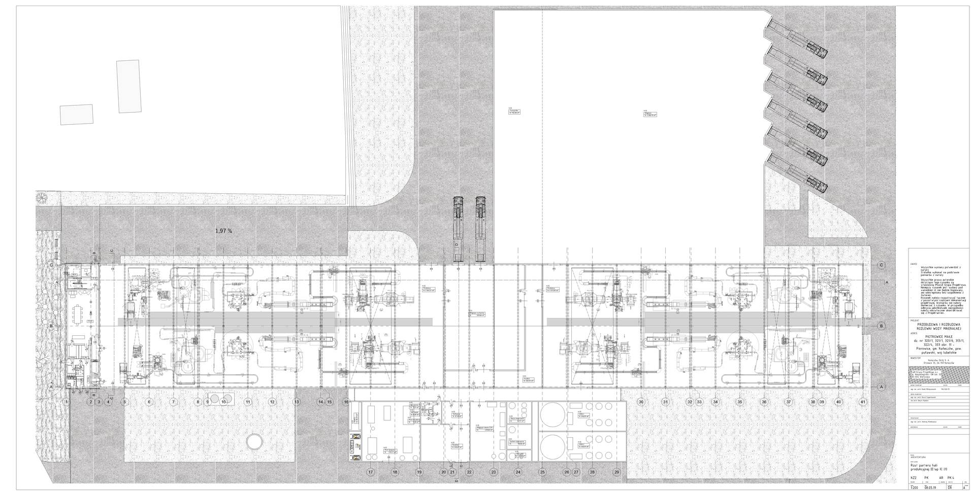
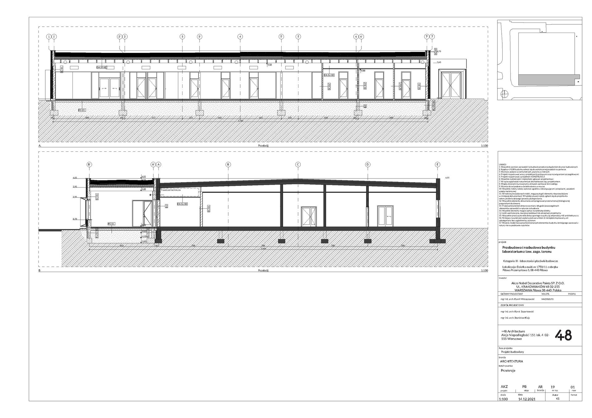
HALA is a system that supports decision-making for industrial buildings. It brings together planning regulations, site geometry, function, cost, and risk into a single framework that allows scenarios to be tested before a project begins. It helps investors and industrial teams understand what is possible, what makes sense, and how a facility can evolve over time-so that industrial buildings are both technologically efficient and good places for the people who work in them.
Early-stage assessment of the investment potential and basic feasibility of the project.
XXX
You will receive a preliminary development layout, constraints verification and an indicative cost range.
Cost: 1500 PLN + VAT
Support in bringing the project from design to the construction stage.
XXX
Krótko wyjaśniamy, jak oceniać potencjał działki, planować halę i rozumieć wpływ układu, logistyki oraz kosztów na inwestycję.
Sprawdź, jak ograniczenia działki wpływają na możliwą zabudowę i dlaczego intuicja często zawodzi.
Czytaj więcej Działka 5000 m²Sprawdź, jak PBC, parkingi, wjazd i logistyka wpływają na to, ile hali realnie zmieści się na działce.
Czytaj więcej Ubezpieczenie haliZobacz, dlaczego hala zgodna z przepisami może nadal być trudna do ubezpieczenia i generować ukryte ryzyko finansowe.
Czytaj więcej